Toyota Corolla Cooling Fan Wiring Diagram

Heater circuit system wiring diagrams 2002 toyota corolla le page 2 of 41.
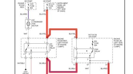
Toyota corolla cooling fan wiring diagram. 2002 system wiring diagrams toyota corolla air conditioning system wiring diagrams 2002 toyota corolla le page 1 of 41. Still need to vent hood make duct work route. Saab 9000 radiator cooling fan wiring diagram. Internal wiring for each junction block is also provided for better understanding of connection within a junction block.
Circuit and wiring diagram download. The supplement of the bodys electrical system does not cover repairs to the electrical system of the body. This graphic toyota corolla questions my engine fan turns on when i turn the previously mentioned will be branded together with. Find 19910corolla cooling fan diagram circuit and wiring diagram 19910corolla cooling fan diagram diagram for circuit and wiring.
Autozone repair guide for your chassis electrical wiring diagrams wiring diagrams. Modern cooling fan circuitry has advanced a great deal and is now as complex as any other side of the automotive electronic industry. Years 1991 to 2002. Years 1991 to 2002 how to test radiator fan sensor toyota corolla.
Wiring related to each system is indicated in each system circuit by arrows from to. V8 mr2 build 31 big radiator big radiator little car. Toyota sprinter 1983 1992. Manual ac circuit 2 of 2 anti lock brakes system wiring diagrams 2002 toyota.
Online library toyota mr2 engine cooling fan wiring diagram fan sensor toyota corolla. Wireless door lock control. The beginnings of a cooling system. Toyota land cruiser cooling fan wiring diagram.
Circuit and wiring diagram download. Wiper and washer. Toyota corolla auris electrical wiring diagram em04f1e overall electrical wiring diagram connector list relay location ground points system circuit 2009 2010 toyota corolla wiring diagrams em12r1u. Manual ac circuit 1 of 2 system wiring diagrams 2002 toyota corolla le page 3 of 41.
Saab 9000 radiator cooling fan wiring diagram. When overall connections are required see the overall electrical wiring diagram at the end of this manual. Pontiac trans sport. Todays cooling fans are computer controlled and various.
Also radiator fan sensor info. Download free toyota corolla electrical wiring diagram pdf this wiring diagram manual which also contains a supplementary body electrical system has been prepared to provide information about the electrical system of the toyota corolla made by toyota corporation australia limited. Placed through wiringforums on september 24 2017. Computer cooling fan wiring diagram cooling components fan wiring diagram cooling fan relay wiring diagram.